Piet de Winterlaan 28

Amstelveen

Piet de Winterlaan 28 Amstelveen

Vraagprijs € 449.000 k.k.

Omschrijving

PIET DE WINTERLAAN 46 AMSTELVEEN (for English see below)

Op een geweldige en rustige locatie aan het natuur-/recreatiegebied Middelpolder is deze MIDDEN WONING bestaande uit 5 kamers met een woonoppervlakte van 88 m² met een tuin van circa 10 meter diep, op een perceel van 145 m² met een parkeerplaats op eigen terrein.

Bent u op zoek naar een heerlijke eengezinswoning gelegen in een rustige en populaire woonomgeving in Amstelveen met uitbouw mogelijkheden? Dan kunt u nu een afspraak maken!

Omgeving:
Het natuurgebied grenst aan je huis want op loopafstand bevindt zich de Middelpolder, een fraai recreatiegebied waar u heerlijk kunt fietsen en wandelen.
De ligging nabij winkels, openbaar vervoer en snelweg is perfect: winkelcentrum Kostverlorenhof ligt op minder dan vijf minuten lopen. Hier kan je alle dagen van de week je boodschappen doen.
De bus stopt om de hoek en de nabij gelegen Beneluxbaan met binnenkort de vernieuwde Amstelveenlijn geeft u de mogelijkheid om met een snelle tramverbinding naar onder andere het centrum van Amsterdam te reizen.
De woning ligt centraal en gunstig t.o.v. de A9, A10 en A2 of andere uitvalswegen richting Amsterdam, Utrecht, Haarlem, Alkmaar en Schiphol. In 25 minuten fiets je naar het centrum van Amsterdam.

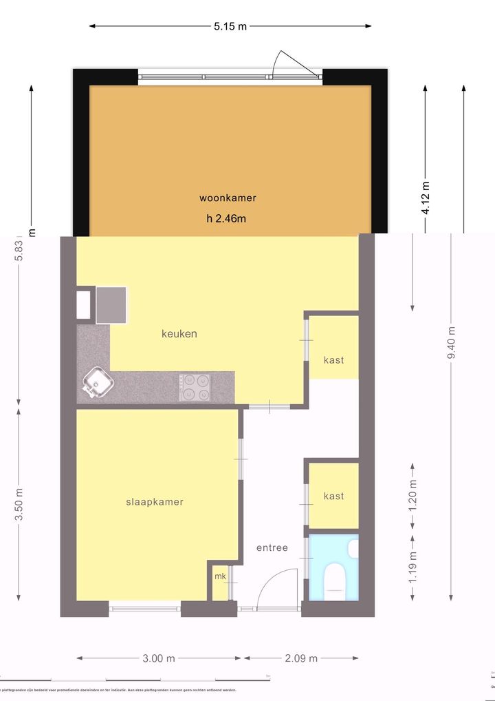
Indeling woonhuis:

Begane grond:
Entree, toiletruimte, meterkast, bergkast, trapopgang naar de eerste verdieping, slaapkamer aan de voorzijde, woonkamer met open keuken aan de achterzijde met toegang tot de ruime achtertuin.

Verdieping:
Overloop, ruime slaapkamer met een groot dakkapel aan de achterzijde, badkamer voorzien van een douche, wastafel, tweede toilet en de wasmachineaansluiting, ruime slaapkamer aan de voorzijde en een kleinere kamer.

De achtertuin is gelegen op het zonnige zuiden. In de tuin staat een schuur voorzien van elektra en er is een achterom.

Onderhoud:
Het woonhuis verkeert in een goede staat van onderhoud, waarbij opgemerkt moet worden dat de slaapkamer aan de achterzijde op de eerste verdieping niet is voorzien van een verwarmingselement. Deze kan naar eigen inzicht worden aangelegd. De open keuken zal eveneens aan vervanging toe zijn.

Bijzonderheden:
• Woonhuis van 88 m²
• Perceeloppervlakte van 145 m²
• EIGEN GROND
• Volledig geïsoleerd
• Mogelijkheid tot uitbouw aan de achterzijde;
• 4 slaapkamers
• Achtertuin van 10 meter diep
• Uitbouwmogelijkheden
• Parkeerplaats op eigen terrein
• Energielabel A

In de koopovereenkomst worden de volgende clausules toegevoegd:

Maatvoeringsverklaring:
“De gebruiksoppervlakte zoals vermeld in de brochure en/of de aanmelding op Funda is berekend conform de in de branche vastgestelde Branche Brede Meetinstructie (afgeleid van de NEN 2580-norm). De oppervlakte kan derhalve afwijken van vergelijkbare panden en/of oude referenties. Dit heeft vooral te maken met deze rekenmethode. Bij het tot stand komen van een koopovereenkomst verklaart koper voldoende te zijn geïnformeerd over de hiervoor bedoelde normering. Makelaar verkoper heeft zijn uiterste best gedaan de juiste oppervlakte en inhoud te berekenen aan de hand van eigen metingen en die van een professioneel bedrijf en dit zoveel mogelijk te ondersteunen door het plaatsen van plattegronden met maatvoering. Koper wordt voldoende in de gelegenheid gesteld de maatvoering zelf te (laten) controleren. Mocht de maatvoering voor een koper van evident belang zijn, dan dient koper dat uiten en verklaren zij door de verkopend of aankopend makelaar voldoende te zijn geadviseerd, om dit zelfstandig nog eens na te (laten) meten.”

Niet zelf bewoningsclausule:
“Koper is geattendeerd op het feit dat verkoper het verkochte niet zelf heeft gebruikt/bewoond en dat hij derhalve koper niet heeft kunnen informeren over eigenschappen van c.q. gebreken aan het verkochte, waarvan hij op de hoogte zou zijn geweest als hij het verkochte zelf feitelijk had gebruikt. In dit kader zijn partijen uitdrukkelijk overeen gekomen, dat dergelijke eigenschappen c.q. gebreken voor risico en rekening van koper komen en dat bij de vaststelling van de koopsom hiermee rekening is gehouden.”

Lees de volledige omschrijving

Kenmerken

Algemeen

vraagprijs
€ 449.000 kosten koper
Status
Verkocht
Bekijk alle kenmerken

Overige media